31 Starr DriveTroy City, MI 48083
Due to the health concerns created by Coronavirus we are offering personal 1-1 online video walkthough tours where possible.




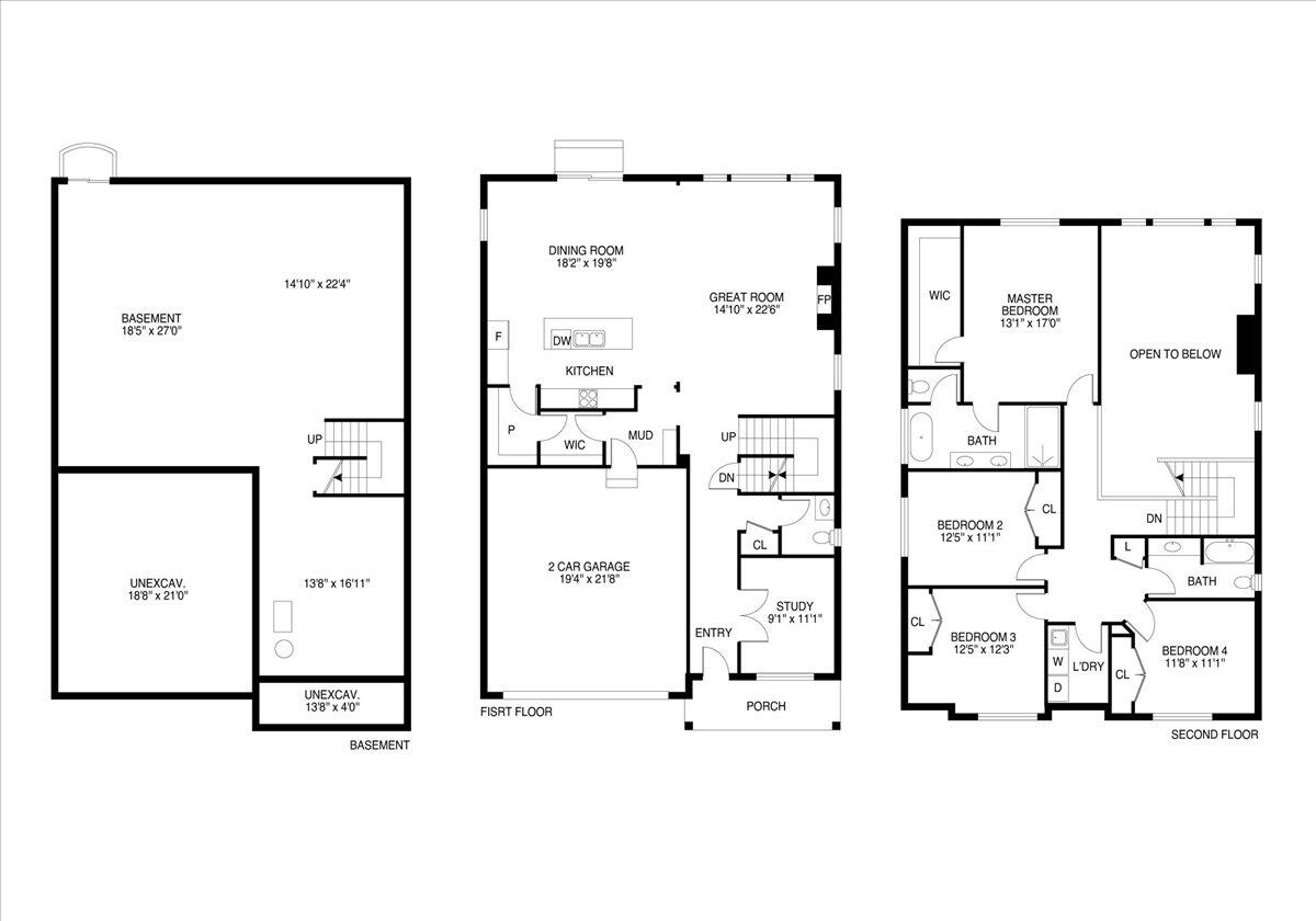
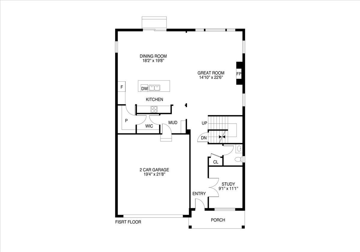
SOUTH FACING HOME. Discover a new Semi Custom built home opportunity in Troy, MI. Centurion Building Company presents a 2600 sqft modern farmhouse colonial on a half-acre parcel. This 4-bed, 2.1-bath home features an open floor plan, high ceilings, and abundant natural light. The gourmet kitchen, dining area, and living room offer seamless entertaining. The primary suite boasts a spa-like ensuite and walk-in closet. With a 2-car garage and ample yard space, customization possibilities abound. Close to amenities, schools, and easy access to Detroit. Embrace comfort and luxury in Troy. Build timeline is 10 months once plans and price are set. Custom Home Build to suit, model shown may differ from selected build preferences selected by purchaser.
| 4 weeks ago | Listing first seen on site | |
| 4 weeks ago | Listing updated with changes from the MLS® |
IDX provided courtesy of Realcomp II Ltd. via GreaterMetropolitanAssociationofREALTORS. Copyright © 2025 Realcomp II Ltd. Shareholders.
IDX information is provided exclusively for consumers' personal, non-commercial use and may not be used for any purpose other than to identify prospective properties consumers may be interested in purchasing and that the data is deemed reliable but not guaranteed accurate by the MLS.
Did you know? You can invite friends and family to your search. They can join your search, rate and discuss listings with you.